![]() |
![]() |
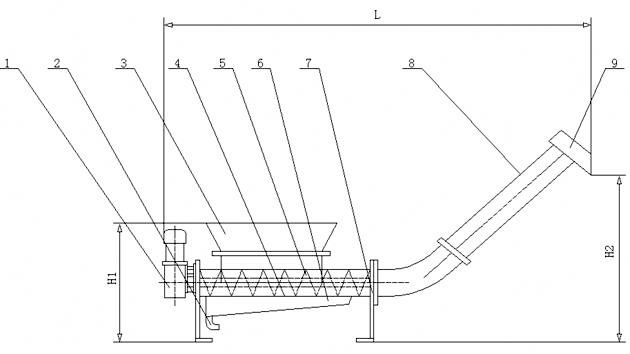
無軸螺旋輸送壓榨機技術說明作者:民松螺旋輸送機 來源:本站原創 發布:2018年9月19日 修改:2018年9月19日 所屬分類:新聞中心 訪問統計:2758 無軸螺旋壓榨機是攔污格柵的配套設備,它是由進料斗、壓榨螺旋、螺旋管、排渣管和驅動裝置組成。格柵撈取的柵渣或過濾后濾渣從進料斗進入螺旋管,在壓榨螺旋的作用下被擠壓、脫水。從物料中被擠出的水透過濾網匯集到接水盆并由排水管排出,物料被壓縮后經排渣管排出,從而可以大大地減少柵渣等雜物的重量和體積。螺旋壓榨機由排水區、進料區、螺旋輸送區、出料區組成。柵渣進入料區,通過螺旋壓榨機在壓實區進行壓實后柵渣排出,廢液從柵條中流入集水管
一、前進無軸螺旋輸送壓榨機主要技術參數
二、前進無軸螺旋輸送壓榨機主要結構與工作原理
前進無軸螺旋輸送壓榨機由出料口、輸送螺旋、U型槽、蓋板、進料口、驅動機構、襯條、壓榨筒及配重裝置等部件組成。
1、主要結構: ⑴ 螺旋槽采用板材在專用模具上壓制而成,槽內設有耐磨襯體,更換方便簡單。槽體上制作進料口,供格柵排渣使用,并在輸送機上配有蓋板。 ⑵ 螺旋葉片采用專用工裝模具熱拉成形,成形后的葉片間距均勻、統一。 ⑶驅動機構組裝在螺旋輸送機一端,與螺旋葉片直接連接,無需聯軸器。驅動裝置具有過載保護功能,滿足全天候的安全,有效運行。 ⑷柵渣進料口設計與格柵排渣口相對應,滿足柵渣完全落入輸送機的要求。 ⑸壓榨裝置設置在輸送機末端,物料經螺旋輸送至該部位時經配重裝置及 螺旋推力作用下壓榨,水份由壓榨筒上泄水孔排出,干料由出料口排出。 2、工作原理 物料由進料口進入,經螺旋逐漸推移至出口壓榨筒處壓榨,完成輸送壓榨過程。
三、前進無軸螺旋輸送壓榨機主要部件材質
四、前進無軸螺旋壓榨輸送機電器控制系統
無軸螺旋輸送壓榨機自動控制,可單獨控制,亦可聯動控制,當格柵啟動時,輸送機也隨之啟動并運行,直至格柵停止后2分鐘才停止輸送機,F場控制箱設有手動控制開關,控制箱配套有以下功能:電機保護空氣開關、接觸器、熱繼電器、起?刂瓢粹o、起停指示燈、轉換開關、緊急停車按鈕、故障報警指示燈,并預留有PLC控制接口。 (1)控制箱防護等級IP55,戶外型,用于設備的配電和運行控制。 (2)控制箱設有短路、過電流、欠電壓、過載保護裝置。 (3)控制箱遠程控制必須滿足電氣控制的要求。 (4)螺旋輸送機與格柵除污機聯動。 (5)所有電氣元件采用施耐德產品。 五、前進無軸螺旋壓榨輸送機設備設計、制造、檢驗所遵循的標準目錄
該產品在設計、制造、檢驗、包裝運輸及安裝過程中所遵循的通用標準均為國標(GB )或部標(JB)這些通用標準目錄省略,同時需要滿足(但不限于)以下標準要求: JB/T2932-1999水處理設備技術條件 JB/T8828-2001切削加工件 通用技術條件JB/T5000.5-2007 重型機械通用技術條件第5部分:有色金屬鑄件GB/T1176-1987鑄造銅合金技術條件GB/T1220-2007不銹鋼棒 GB/T6414-1999鑄件 尺寸公差與機械加工余量 GB/T9439-1988灰鑄鐵件 GB/T8923-1998涂裝前鋼材表面銹蝕等級和除銹等級 GB/T 4879-1999防銹包裝 YJ010拋丸噴砂技術條件及檢驗方法 適用于本產品的“產品出廠前的檢驗規則和方法” 適用于本產品的“產品安裝手冊”及“產品安裝檢驗規則和方法” 適用于本產品的“產品型式試驗規則”“產品的試驗方法” 六、前進無軸螺旋輸送壓榨機設備的可靠性及耐久性 1、設備無故障運行時間大于10000小時。 2、整機使用壽命在25年以上。 3、設備每年檢修一次,減速機、軸承使用年限不少于10年,電器裝置不少于3年。 七、前進無軸螺旋輸送壓榨機設備的防腐 1、不銹鋼零件加工完后對其表面進行酸洗鈍化處理。 2、碳鋼件除銹達Sa2.5級標準。 3、碳鋼防腐劑涂富鋅底漆,云母氧化鐵中間漆、防腐面漆、漆膜總厚度不低于200μm。 4、包裝前對機加工面按GB/T4879標準要求做防腐處理。 5、運輸安裝過程中涂層破損,嚴格按涂裝工藝進行修復,其質量水平不低于原涂層的質量水平。
八、前進無軸螺旋輸送壓榨機供貨范圍 ·整機供貨:包括出料口、輸送螺旋、U型槽、蓋板、進料口、驅動機構(電機、減速機) 、襯條、壓榨筒及配重裝置 ·控制箱(與格柵控制箱合并)
九、前進無軸螺旋輸送壓榨機試驗及驗收: (1)車間測試在設備組裝完畢后,發貨前對其作全面地測試和檢驗。 (2)現場測試:設備安裝應在廠家的指導下進行。測試時必須有買方代表在場。 上一文章:無軸螺旋輸送機的常見故障 下一文章:無軸螺旋輸送機的相關知識 |